Search

LEAVE A MESSAGE

Thank you for your message. We will be in touch with you shortly.

Explore Our Properties

Property Description

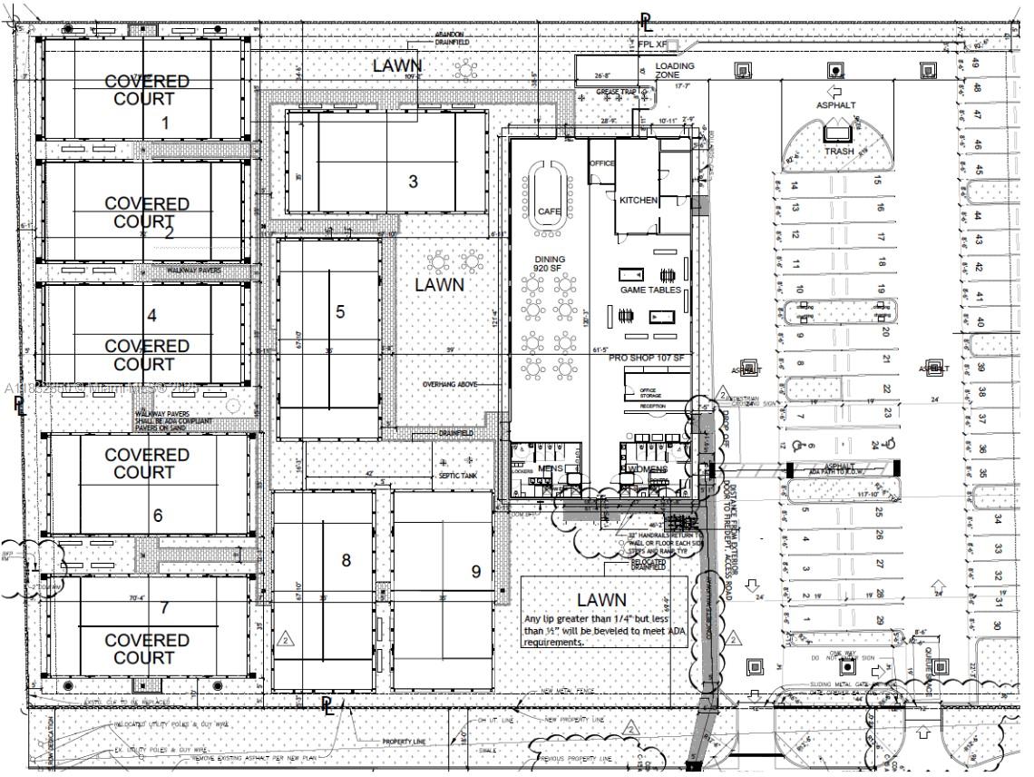
Rare opportunity to acquire both land and a fully approved Padel Club project in the heart of Hollywood. This 2-acre C-4 zoned property includes a site plan approved for 9 padel courts, including indoor options. Includes fee simple land ownership and approved business concept. SBA 504/7(a) financing options availableIdeal for investors or owner-operators seeking income-producing real estate. Business can be delivered turn-key with operations or for owner use. Significant long-term upside with potential for vertical development--up to 140+ residential units under the Live Local Act. Full business details and Offering Memorandum available upon request, listing price is for land only.

Overview

Property Status
Pending
Lot Size
2 Acres
MLS ID
A11832850
Property Type
Commercial

Features & Amenities

Water Frontage
Canal Front
Water Source
Municipal Water
Utilites
Water Connected, Electricity Available, Trash Removal, Water Available
Lot Features
City Location, 1-25 Acres
Sewer
Septic Tank
Sales Price
$6,500,000
Real Estate Tax
$50,087/yr
Zoning
C-4

Downloads

600 Knights Rd

Schedule a Tour

We would love to help you see this beautiful home! As a full-service brokerage, we can help you tour. Please submit an offer, and answer questions about the buying process.

Thank you

for your interest in 600 Knights Rd, Hollywood, FL 33021

600 Knights Rd
Navigate
600 Knights Rd
explore in 3d

Mortgage Calculator

Estimate your monthly mortgage payment, including the principal and interest, property taxes, and HOA. Adjust the values to generate a more accurate rate.
$0,000 Your Payment 20 15 65
$0,000 Your Payment

Camporesi Papeo Group Properties

Browse Our Portfolio

  • For Sale
  • 315 US Hwy 17 92 For Sale

    $12,000,000

    315 US Hwy 17 92, Davenport, FL 33837

    • 213,564 Sq.Ft.
  • 17901 Collins Ave # 3103 For Sale

    $8,795,000

    17901 Collins Ave # 3103, Sunny Isles Beach, FL 33160

    • 4 Beds
    • 5 Baths
    • 2,987 Sq.Ft.
  • 1101 Mastic Street For Sale

    $8,490,000

    1101 Mastic Street, Islamorada, FL 33036

    • 8 Beds
    • 6 Baths
  • 1230 97th St Sold

    $7,600,000

    1230 97th St, Bay Harbor Islands, FL 33154

    • 6 Beds
    • 7 Baths
  • 14th-Century Grand Estate Just Outside Florence For Sale

    $6,500,000

    Sesto Fiorentino - Florence, Tuscany, Italy

    • 12 Beds
    • 17 Baths
    • 32,292 Sq.Ft.
  • 600 Knights Rd Pending

    $6,500,000

    600 Knights Rd, Hollywood, FL 33021

  • Tuscan Hospitality Estate For Sale

    $6,350,000

    Gambassi Terme- Florence, Tuscany, Italy

    • 27 Beds
    • 35 Baths
    • 22,604 Sq.Ft.
  • 240 Rua Joao Borges For Sale

    $5,799,900

    240 Rua Joao Borges, Other Country - Not In USA, VA 22451

    • 5 Beds
    • 8 Baths
    • 36,500 Sq.Ft.
  • 1040 S Shore Dr For Sale

    $4,950,000

    1040 S Shore Dr, Miami Beach, FL 33141

    • 5 Beds
    • 6 Baths
    • 5,647 Sq.Ft.
  • 4643 SE Cheerio Way For Sale

    $4,950,000

    4643 SE Cheerio Way, Stuart, FL 34997

    • 6 Beds
    • 7 Baths
    • 5,176 Sq.Ft.
  • 1135 103 # 606 For Sale

    $4,495,000

    1135 103 # 606, Bay Harbor Islands, FL 33154

    • 4 Beds
    • 5 Baths
    • 3,523 Sq.Ft.
  • 2801 NW 102nd St For Sale

    $4,350,000

    2801 NW 102nd St, Miami, FL 33165

  • 9009 Byron Ave Sold

    $4,300,000

    9009 Byron Ave, Surfside, FL 33154

    • 6 Beds
    • 7 Baths
    • 4,045 Sq.Ft.
  • 10810 S Ocean Dr For Sale

    $4,250,000

    10810 S Ocean Dr, Jensen Beach, FL 34957

  • 370 W 78th Rd Sold

    $4,152,300

    370 W 78th Rd, Hialeah, FL 33014

    • 18,496 Sq.Ft.
  • 4430 Casper Ct Sold

    $4,000,000

    4430 Casper Ct, Hollywood, FL 33021

    • 6 Beds
    • 6 Baths
    • 4,387 Sq.Ft.
  • 9703 Collins Ave # 12 Unit: PH-12 For Sale

    $4,000,000

    9703 Collins Ave # 12 Unit: PH-12, Bal Harbour, FL 33154

    • 2 Beds
    • 2 Baths
    • 1,541 Sq.Ft.
  • 1981 NE 153rd St For Sale

    $3,990,000

    1981 NE 153rd St, North Miami Beach, FL 33162

  • 472 Sunset Dr For Sale

    $3,825,000

    472 Sunset Dr, Hallandale Beach, FL 33009

    • 7 Beds
    • 5 Baths
    • 3,704 Sq.Ft.
  • 3306 NE 16th St Sold

    $3,800,000

    3306 NE 16th St, Fort Lauderdale, FL 33304

    • 5 Beds
    • 6 Baths
    • 4,285 Sq.Ft.
  • 1000 Brickell Plz Unit: PH5304 For Sale

    $3,659,000

    1000 Brickell Plz Unit: PH5304, Miami, FL 33131

    • 3 Beds
    • 5 Baths
    • 2,418 Sq.Ft.
  • 5111 NE 30th Ave Sold

    $3,636,000

    5111 NE 30th Ave, Lighthouse Point, FL 33064

    • 5 Beds
    • 4 Baths
    • 4,109 Sq.Ft.
  • 14 125th Street Gulf For Sale

    $3,549,000

    14 125th Street Gulf, Marathon, FL 33050

    • 6,128 Sq.Ft.
  • 2600 Island Blvd # 1006 For Sale

    $3,500,000

    2600 Island Blvd # 1006, Aventura, FL 33160

    • 5 Beds
    • 6 Baths
    • 4,740 Sq.Ft.
  • 65890 Overseas Hwy Sold

    $3,500,000

    65890 Overseas Hwy, Long Key, FL 33001

    • 7 Beds
    • 6 Baths
    • 7,941 Sq.Ft.
  • 1018 S Northlake Dr For Sale

    $3,400,000

    1018 S Northlake Dr, Hollywood, FL 33019

  • 5130 - 5140 NW 5th Avenue For Sale

    $3,375,000

    5130 - 5140 NW 5th Avenue, Miami, FL 33127

    • 5,800 Sq.Ft.
  • 25200 SW 189 ave For Sale

    $3,326,999

    25200 SW 189 ave, Unincorporated Dade County, FL 33031

    • 4 Beds
    • 5 Baths
    • 4,412 Sq.Ft.
  • 330 Sunny Isles Blvd # 2404 Unit: 5-2404 Sold

    $3,200,000

    330 Sunny Isles Blvd # 2404 Unit: 5-2404, Sunny Isles Beach, FL 33160

    • 4 Beds
    • 5 Baths
    • 3,084 Sq.Ft.
  • 4321 Nautilus Dr For Sale

    $3,200,000

    4321 Nautilus Dr, Miami Beach, FL 33140

    • 4 Beds
    • 3 Baths
    • 3,418 Sq.Ft.
  • 2381 NE 24th St Sold

    $3,100,000

    2381 NE 24th St, Lighthouse Point, FL 33064

    • 3 Beds
    • 3 Baths
    • 3,085 Sq.Ft.
  • Charming Villa in Lucca For Sale

    $3,100,000

    Lucca, Tuscany, Italy

    • 5 Beds
    • 5 Baths
    • 8,923 Sq.Ft.
  • 34 Atlantic Drive For Sale

    $2,890,000

    34 Atlantic Drive, Marathon, FL 33037

    • 5 Beds
    • 4 Baths
  • 5635 Brookfield Cir w Pending

    $2,850,000

    5635 Brookfield Cir w, Fort Lauderdale, FL 33312

    • 6 Beds
    • 8 Baths
    • 5,377 Sq.Ft.
  • 1000 S Pointe Dr # 705 Sold

    $2,700,000

    1000 S Pointe Dr # 705, Miami Beach, FL 33139

    • 2 Beds
    • 3 Baths
    • 1,407 Sq.Ft.
  • 5105 S Olive Ave Sold

    $2,600,000

    5105 S Olive Ave, West Palm Beach, FL 33405

    • 5 Beds
    • 5 Baths
    • 3,154 Sq.Ft.
  • 1000 Brickell Plz Unit: PH5707 Sold

    $2,500,000

    1000 Brickell Plz Unit: PH5707, Miami, FL 33131

    • 3 Beds
    • 4 Baths
    • 1,912 Sq.Ft.
  • Villa Rossi For Sale

    $2,500,000

    Dryos Paros, Paros, Greece

    • 6 Beds
    • 6 Baths
    • 3,014 Sq.Ft.
  • 17001 Collins Ave # 3005 For Sale

    $2,495,000

    17001 Collins Ave # 3005, Sunny Isles Beach, FL 33160

    • 3 Beds
    • 4 Baths
    • 1,927 Sq.Ft.
  • 1225 NE 15th Ave # 9 Unit: 1-9 For Sale

    $2,490,000

    1225 NE 15th Ave # 9 Unit: 1-9, Fort Lauderdale, FL 33304

    • 3,770 Sq.Ft.
  • 2054 NE 2nd St Sold

    $2,490,000

    2054 NE 2nd St, Deerfield Beach, FL 33441

    • 2,000 Sq.Ft.
  • 1636 NE 18th Ave Sold

    $2,450,000

    1636 NE 18th Ave, Fort Lauderdale, FL 33305

    • 4 Beds
    • 5 Baths
    • 2,950 Sq.Ft.
  • 4235 SW 84th Ct Sold

    $2,370,000

    4235 SW 84th Ct, Miami, FL 33155

    • 4 Beds
    • 5 Baths
    • 4,456 Sq.Ft.
  • 1531 SE 12th Ct Sold

    $2,300,000

    1531 SE 12th Ct, Fort Lauderdale, FL 33316

    • 2 Beds
    • 2 Baths
    • 1,238 Sq.Ft.
  • Exclusive Luxury Loft in the Heart of Florence For Sale

    $2,280,000

    Historic Centre - Florence, Tuscany, Italy

    • 3 Beds
    • 3 Baths
    • 4,079 Sq.Ft.
  • 3951 S Ocean Dr # 1003 Sold

    $2,250,000

    3951 S Ocean Dr # 1003, Hollywood, FL 33019

    • 3 Beds
    • 4 Baths
    • 2,356 Sq.Ft.
  • 9401 NW 44th Pl Sold

    $2,250,000

    9401 NW 44th Pl, Coral Springs, FL 33065

    • 7 Beds
    • 5 Baths
    • 6,704 Sq.Ft.
  • 1730 NE 7th St # 5 Unit: 1-5 For Sale

    $2,249,000

    1730 NE 7th St # 5 Unit: 1-5, Fort Lauderdale, FL 33304

    • 3,157 Sq.Ft.
  • 3501 N Ocean Dr # V5 For Sale

    $2,195,000

    3501 N Ocean Dr # V5, Hollywood, FL 33019

    • 2 Beds
    • 3 Baths
    • 2,803 Sq.Ft.
View All

Follow Us On Instagram