Search

LEAVE A MESSAGE

Thank you for your message. We will be in touch with you shortly.

Explore Our Properties

Property Description

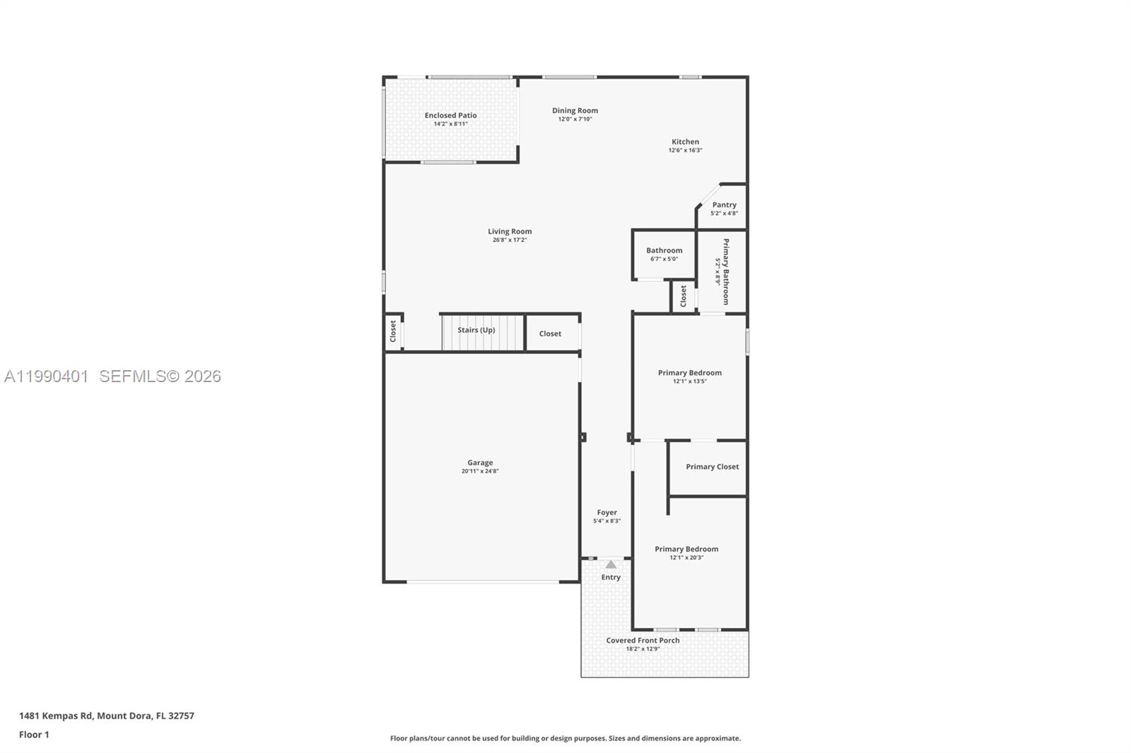
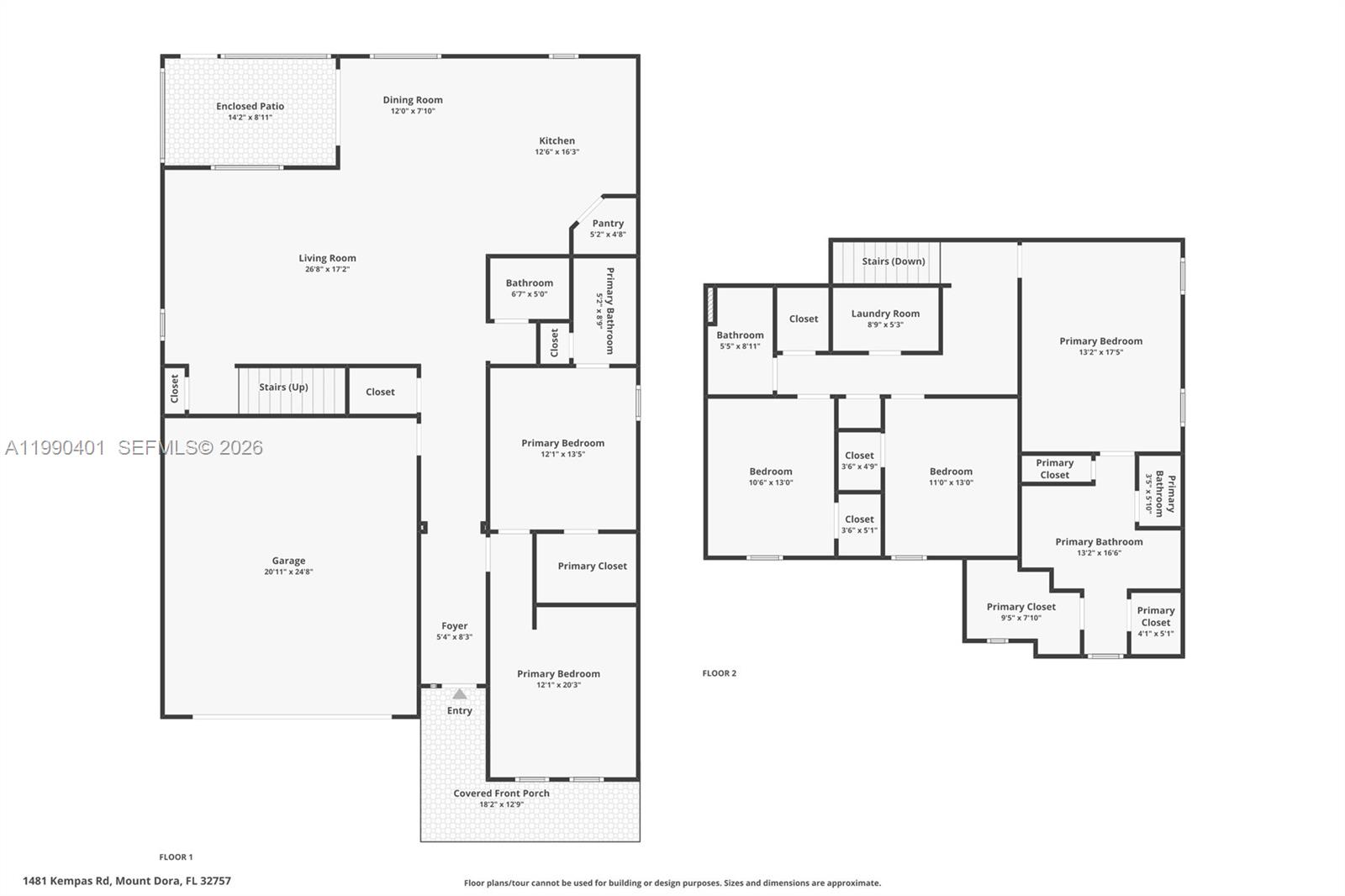
Rare opportunity to own a move-in ready McGraw model in Timberwalk--no longer available through the builder.

This all-block construction home features one of the largest kitchen and living layouts in the community, designed for both everyday living and entertaining.

A true first-floor in-law suite with private kitchenette offers flexibility for multi-generational living, guests, or extended stays.

Thoughtfully upgraded throughout, the home includes LVP flooring, custom Closet by Design systems in the pantry, laundry, and primary closets, as well as an upgraded laundry room with cabinetry, folding station, and hanging rack.

The screened-in lanai and private fenced backyard create the perfect space to relax or entertain outdoors.

Smart Home features include a front door lock, thermostat, doorbell camera, porch lighting, and touchscreen control hub.

Enjoy community amenities including walking and biking trails, a pool, playgrounds, and outdoor fitness areas, all conveniently located near major roadways, shopping, and dining, with approximately 25-40 minutes access to Orlando depending on destination.

Overview

Property Status
For Sale
Lot Size
6,875 Sq.Ft.
MLS ID
A11990401
Property Type
Residential
Year Built
2023

Features & Amenities

Architecture Styles
Attached, Two Story, Modern/Contemporary
View Description
Other
Garage Spaces
2.0
Water Source
Municipal Water, Other
Roof
Shingle
Lot Features
Less Than 1/4 Acre Lot, Regular Lot
Parking
Additional Spaces Available, Driveway, Other
Heat Type
Electric
Air Conditioning
Ceiling Fan(s), Central Air
Laundry Room
Utility Room/Laundry, Washer/Dryer Hook-Up
Appliances
Dishwasher, Disposal, Ice Maker, Microwave, Electric Range, Refrigerator, Water Softener Owned
Other Interior Features
First Floor Entry, Built-in Features, Closet Cabinetry, Cooking Island, Pantry, Walk-In Closet(s), Den/Library/Office, Loft, Maid/In-Law Quarters, Other, Utility Room/Laundry
Sewer
Public Sewer
Security Features
Owned Burglar Alarm, Smoke Detector
Other Exterior Features
Lighting
Sales Price
$474,900
Real Estate Tax
$4,383/yr
HOA
$310/3 mos
Zoning
PUD

Downloads

1481 Kempas Road

Schedule a Tour

We would love to help you see this beautiful home! As a full-service brokerage, we can help you tour. Please submit an offer, and answer questions about the buying process.

Thank you

for your interest in 1481 Kempas Road, Mount Dora, FL 32757

1481 Kempas Road
Navigate
1481 Kempas Road
explore in 3d

Mortgage Calculator

Estimate your monthly mortgage payment, including the principal and interest, property taxes, and HOA. Adjust the values to generate a more accurate rate.
$0,000 Your Payment 20 15 65
$0,000 Your Payment

Camporesi Papeo Group Properties

Browse Our Portfolio

  • For Sale
  • 315 US Hwy 17 92 For Sale

    $12,000,000

    315 US Hwy 17 92, Davenport, FL 33837

    • 213,564 Sq.Ft.
  • 1230 97th St Sold

    $7,600,000

    1230 97th St, Bay Harbor Islands, FL 33154

    • 6 Beds
    • 7 Baths
  • 14th-Century Grand Estate Just Outside Florence For Sale

    $6,500,000

    Sesto Fiorentino - Florence, Tuscany, Italy

    • 12 Beds
    • 17 Baths
    • 32,292 Sq.Ft.
  • 600 Knights Rd For Sale

    $6,500,000

    600 Knights Rd, Hollywood, FL 33021

  • Tuscan Hospitality Estate For Sale

    $6,350,000

    Gambassi Terme- Florence, Tuscany, Italy

    • 27 Beds
    • 35 Baths
    • 22,604 Sq.Ft.
  • 240 Rua Joao Borges For Sale

    $5,799,900

    240 Rua Joao Borges, Other Country - Not In USA, VA 22451

    • 5 Beds
    • 8 Baths
    • 36,500 Sq.Ft.
  • 1040 S Shore Dr For Sale

    $4,950,000

    1040 S Shore Dr, Miami Beach, FL 33141

    • 5 Beds
    • 6 Baths
    • 5,647 Sq.Ft.
  • 4643 SE Cheerio Way For Sale

    $4,950,000

    4643 SE Cheerio Way, Stuart, FL 34997

    • 6 Beds
    • 7 Baths
    • 5,176 Sq.Ft.
  • 1135 103 # 606 For Sale

    $4,495,000

    1135 103 # 606, Bay Harbor Islands, FL 33154

    • 4 Beds
    • 5 Baths
    • 3,523 Sq.Ft.
  • 2801 NW 102nd St For Sale

    $4,350,000

    2801 NW 102nd St, Miami, FL 33165

  • 9009 Byron Ave Sold

    $4,300,000

    9009 Byron Ave, Surfside, FL 33154

    • 6 Beds
    • 7 Baths
    • 4,045 Sq.Ft.
  • 10810 S Ocean Dr For Sale

    $4,250,000

    10810 S Ocean Dr, Jensen Beach, FL 34957

  • 370 W 78th Rd Sold

    $4,152,300

    370 W 78th Rd, Hialeah, FL 33014

    • 18,496 Sq.Ft.
  • 4430 Casper Ct Sold

    $4,000,000

    4430 Casper Ct, Hollywood, FL 33021

    • 6 Beds
    • 6 Baths
    • 4,387 Sq.Ft.
  • 9703 Collins Ave # 12 Unit: PH-12 For Sale

    $4,000,000

    9703 Collins Ave # 12 Unit: PH-12, Bal Harbour, FL 33154

    • 2 Beds
    • 2 Baths
    • 1,541 Sq.Ft.
  • 1981 NE 153rd St For Sale

    $3,990,000

    1981 NE 153rd St, North Miami Beach, FL 33162

  • 472 Sunset Dr For Sale

    $3,825,000

    472 Sunset Dr, Hallandale Beach, FL 33009

    • 7 Beds
    • 5 Baths
    • 3,704 Sq.Ft.
  • 3306 NE 16th St Sold

    $3,800,000

    3306 NE 16th St, Fort Lauderdale, FL 33304

    • 5 Beds
    • 6 Baths
    • 4,285 Sq.Ft.
  • 2600 Island Blvd # 1006 For Sale

    $3,750,000

    2600 Island Blvd # 1006, Aventura, FL 33160

    • 5 Beds
    • 6 Baths
    • 4,740 Sq.Ft.
  • 1000 Brickell Plz Unit: PH5304 For Sale

    $3,659,000

    1000 Brickell Plz Unit: PH5304, Miami, FL 33131

    • 3 Beds
    • 5 Baths
    • 2,418 Sq.Ft.
  • 5111 NE 30th Ave Sold

    $3,636,000

    5111 NE 30th Ave, Lighthouse Point, FL 33064

    • 5 Beds
    • 4 Baths
    • 4,109 Sq.Ft.
  • 14 125th Street Gulf For Sale

    $3,549,000

    14 125th Street Gulf, Marathon, FL 33050

  • 14 125th Street Gulf For Sale

    $3,549,000

    14 125th Street Gulf, Marathon, FL 33050

    • 14 Beds
    • 19 Baths
  • 14 125th Street Gulf For Sale

    $3,549,000

    14 125th Street Gulf, Marathon, FL 33050

    • 6,128 Sq.Ft.
  • 65890 Overseas Hwy Sold

    $3,500,000

    65890 Overseas Hwy, Long Key, FL 33001

    • 7 Beds
    • 6 Baths
    • 7,941 Sq.Ft.
  • 1018 S Northlake Dr For Sale

    $3,400,000

    1018 S Northlake Dr, Hollywood, FL 33019

  • 5130 - 5140 NW 5th Avenue For Sale

    $3,375,000

    5130 - 5140 NW 5th Avenue, Miami, FL 33127

    • 5,800 Sq.Ft.
  • 4321 Nautilus Dr For Sale

    $3,299,000

    4321 Nautilus Dr, Miami Beach, FL 33140

    • 4 Beds
    • 3 Baths
    • 3,418 Sq.Ft.
  • 330 Sunny Isles Blvd # 2404 Unit: 5-2404 Sold

    $3,200,000

    330 Sunny Isles Blvd # 2404 Unit: 5-2404, Sunny Isles Beach, FL 33160

    • 4 Beds
    • 5 Baths
    • 3,084 Sq.Ft.
  • 2381 NE 24th St Sold

    $3,100,000

    2381 NE 24th St, Lighthouse Point, FL 33064

    • 3 Beds
    • 3 Baths
    • 3,085 Sq.Ft.
  • Charming Villa in Lucca For Sale

    $3,100,000

    Lucca, Tuscany, Italy

    • 5 Beds
    • 5 Baths
    • 8,923 Sq.Ft.
  • 5635 Brookfield Cir w Pending

    $2,850,000

    5635 Brookfield Cir w, Fort Lauderdale, FL 33312

    • 6 Beds
    • 8 Baths
    • 5,377 Sq.Ft.
  • 1000 S Pointe Dr # 705 Pending

    $2,700,000

    1000 S Pointe Dr # 705, Miami Beach, FL 33139

    • 2 Beds
    • 3 Baths
    • 1,407 Sq.Ft.
  • 17001 Collins Ave # 3005 For Sale

    $2,630,000

    17001 Collins Ave # 3005, Sunny Isles Beach, FL 33160

    • 3 Beds
    • 4 Baths
    • 1,927 Sq.Ft.
  • 5105 S Olive Ave Sold

    $2,600,000

    5105 S Olive Ave, West Palm Beach, FL 33405

    • 5 Beds
    • 5 Baths
    • 3,154 Sq.Ft.
  • 1000 Brickell Plz Unit: PH5707 Sold

    $2,500,000

    1000 Brickell Plz Unit: PH5707, Miami, FL 33131

    • 3 Beds
    • 4 Baths
    • 1,912 Sq.Ft.
  • Villa Rossi For Sale

    $2,500,000

    Dryos Paros, Paros, Greece

    • 6 Beds
    • 6 Baths
    • 3,014 Sq.Ft.
  • 1225 NE 15th Ave # 9 Unit: 1-9 For Sale

    $2,490,000

    1225 NE 15th Ave # 9 Unit: 1-9, Fort Lauderdale, FL 33304

    • 3,770 Sq.Ft.
  • 2054 NE 2nd St Sold

    $2,490,000

    2054 NE 2nd St, Deerfield Beach, FL 33441

    • 2,000 Sq.Ft.
  • 1636 NE 18th Ave Sold

    $2,450,000

    1636 NE 18th Ave, Fort Lauderdale, FL 33305

    • 4 Beds
    • 5 Baths
    • 2,950 Sq.Ft.
  • 4235 SW 84th Ct Sold

    $2,370,000

    4235 SW 84th Ct, Miami, FL 33155

    • 4 Beds
    • 5 Baths
    • 4,456 Sq.Ft.
  • 1531 SE 12th Ct Sold

    $2,300,000

    1531 SE 12th Ct, Fort Lauderdale, FL 33316

    • 2 Beds
    • 2 Baths
    • 1,238 Sq.Ft.
  • Exclusive Luxury Loft in the Heart of Florence For Sale

    $2,280,000

    Historic Centre - Florence, Tuscany, Italy

    • 3 Beds
    • 3 Baths
    • 4,079 Sq.Ft.
  • 3951 S Ocean Dr # 1003 Sold

    $2,250,000

    3951 S Ocean Dr # 1003, Hollywood, FL 33019

    • 3 Beds
    • 4 Baths
    • 2,356 Sq.Ft.
  • 9401 NW 44th Pl Sold

    $2,250,000

    9401 NW 44th Pl, Coral Springs, FL 33065

    • 7 Beds
    • 5 Baths
    • 6,704 Sq.Ft.
  • 1730 NE 7th St # 5 Unit: 1-5 For Sale

    $2,249,000

    1730 NE 7th St # 5 Unit: 1-5, Fort Lauderdale, FL 33304

    • 3,157 Sq.Ft.
  • 8220 SW 133rd St Pending

    $2,235,000

    8220 SW 133rd St, Pinecrest, FL 33156

    • 5 Beds
    • 4 Baths
    • 2,874 Sq.Ft.
  • 3501 N Ocean Dr # V5 For Sale

    $2,195,000

    3501 N Ocean Dr # V5, Hollywood, FL 33019

    • 2 Beds
    • 3 Baths
    • 2,803 Sq.Ft.
  • 10201 SW 64th St Sold

    $2,100,000

    10201 SW 64th St, Miami, FL 33173

    • 6 Beds
    • 6 Baths
    • 7,061 Sq.Ft.
View All

Follow Us On Instagram